new build 2-room apartment for sale

(0)

თბილისი-1, პოლიტკოვსკაიას ქ. (ჯიქიას ქ.), Saburtalo 936 views May 02, 2025

$ 96,300 Selling

Overview
Property ID 5637
Category Newly builtGreen frame
Square 63 m²
Number of bedrooms 1
Number of bathrooms 1
Number of Rooms 2
Price $ 96,300
Description

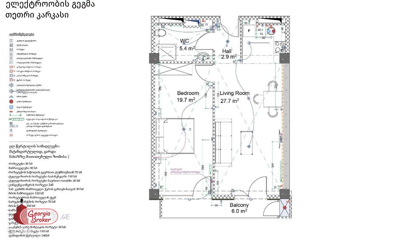
იყიდება თეთრი კვადრატის ძოწის ქუჩაზე მშენებარე კომპლექსში, 1 საძინებლიანი ბინა 8 სართულზე, ნათელი და თბილი, ხედით ქალაქზე.
ბინა ბარდება 2025 სექტემბერში, თეთრი კარკასის მდგომარებაში.
63.4m2
პროექტის შესახებ:
,,თეთრი კვადრატი მინდელზე“ ჯამში 6 საცხოვრებელ კორპუსს აერთიანებს და მოიცავს: ორ 14 სართულიან, ერთი 15 სართულიან და სამ 22 სართულიან კორპუსებს.  თითოეულ საცხოვრებელ სახლში 100-ზე მეტ საცხოვრებელი ბინა და სხვადასხვა ტიპის კომერციული თუ საოფისე ფართებია გათვალისწინებული.

უბანში მოეწყობა სათამაშო და სპორტული მოედნები, რეკრეაციული ზონა, კაფეები, რესტორნები, სალონები და მობინადრეების საჭიროებებზე მორგებული ბევრი სხვა ობიექტი.

სახლები აღიჭურვება გენერატორით, რომელიც უზრუნველყოფს სახანძრო უსაფრთხოების სისტემების, სასმელი წყლის ტუმბოების, ლიფტების, პარკინგის, კორიდორების, საზოგადოებრივი სივრცის და შიდა ეზოს საევაკუაციო და ავარიულ განათებას.

მოეწყობა როგორც ღია, საერთო სარგებლობის, ასევე დახურული ავტოსადგომები სახლების ქვეშ. ფასი  96 300$  596108883


Features

Elevator Elevator

Water Water

Electricity Electricity

Gas Gas


Distance key between facilities

Floor Floor - 8-10

Balcony Balcony - 1





Share this property:



Write a review

Please log in to write review!